跟着巨匠学设想丨想和地产大咖耐久合做?1个户型5种优化计划,领会一下
本文内容整理自设想头条曲播公开课。
Q1:什么是曲播公开课?
设想头条APP每周邀请一位国闺房内设想大咖,为各人带来一个半小时的公开课,以图文曲播的形式讲述本身的设想心得,干货满满,学员还能够与大咖们互动发问。
Q2:那场曲播在哪里看?
点击下方链接即可进入本期曲播间
天鼓设想:统一户型的5种设想体例app.justeasy.cn/dry2/14828?from=android&version=2.0.9&referer=android
Q3:若何报名看曲播?
下载设想头条APP,进入“进修”频道“曲播课”版块点击课程页面的“我要报名”,即可听课哦。
下载链接:http://t.cn/RKs3mcq
讲师介绍
杨俊
天鼓设想开创人/总设想师
上海同济大学建筑学硕士
天鼓设想荣获奖项
2016年度国际空间设想大奖艾特奖更佳贸易空间设想奖
2016年度国际空间设想大奖艾特奖更佳别墅设想奖
2017年度达人室内设想网全国人气十强做品奖
天鼓设想部门做品
北京金地未将来售楼中心
北京亿城燕西华府售楼中心
北京亿城燕西华府小独栋别墅儒道篇
北京亿城燕西华府联排别墅唐朝篇
金地新城大境样板房
龙湖金海湖合院别墅样板房
本期主题:统一户型的5种设想体例讲师导语
本期主讲内容:统一别墅户型的五种设想体例
做为设想师,若是想到达比力高的层面,掌握更大的项目,不只要掌握室内,同时要对建筑构造、景不雅、水电风等各方面有所领会,多种复合的一些常识层面临设想会带来很好的帮忙,做起计划才气愈加得心应手。
讲师毛遂自荐
我的本科专业是西北工业大学飞机系,主修战斗机设想,那培养了我对数据极大的敏感度和偏执的喜好。尤其在施工图上,包罗对称、各类数据的试探,对楼板梁的切确掌握等,都带来非统一般的益处。
之后我进入一家台湾的设想公司,在那过程中,本身的构造根底十分扎实,其实不断在工做中测验考试做建筑计划和室内计划,逐步成为一个计划总设想师。
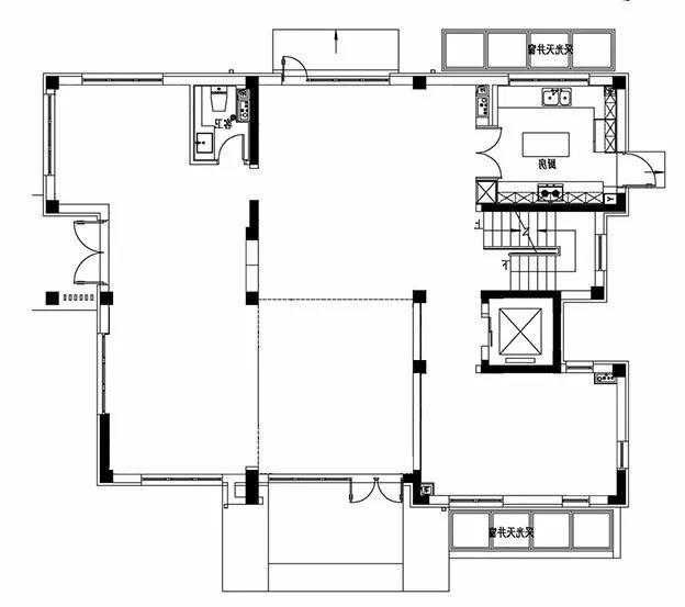
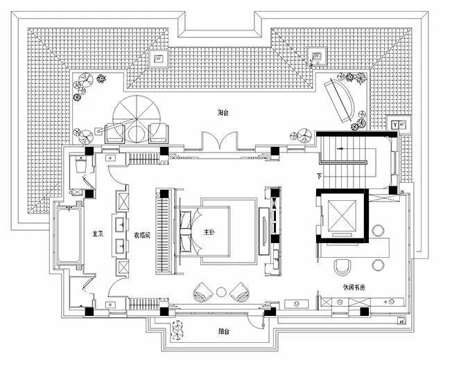
计划一:儒道篇一楼空间
一楼原始平面图
一楼平面计划 那是一个中式的计划,空间分为地上三层和地下一层。比照一楼原始平面,新的平面计划保留了本来的共享空间(虚线区域)。空间周正有序、层层递进。
进入玄关以后,朝南室的院子里有一个大的横厅,置于傍边的榻,一左一右的位置将共享空间划分为家庭聚会区和东侧的接待区。 将原始平面中卫生间的位置停止换位,那需要对构造和窗管井有必然的领会。
那个空间最次要的变革是停止了上下的串联,从平面图中能够看到,中餐厅下面有个比力大的交通空间,应该若何设想操纵?刚巧空间有种立体的互动空间,能够使楼上楼下产生互动。
通过一个圆洞,兼顾地下室的采光,而且使地下室有与人交换的空间。
中式人文礼序的设想手法
整个空间采纳了儒家的一个思惟:仁义礼智信
一楼礼;二楼仁;三楼智的精神内核,同时一楼以山;二楼以鸟;三楼以花为主题。地下室采纳了“道家”水的概念——上善若水。
做计划时,只要灌注贯注必然的概念,良多家私、立面设想、主景墙的设想才有其固定的主题,如许做计划长短常容易被承认的。
二楼空间
二楼原始平面图
二楼平面计划二楼的共享空间,空的处所做成家庭厅。女儿房占用家庭厅的一部门,通过钢架把挑台再挑出来一部门构成一个书廊。如许把空间拓展出来,可以让孩子产生进修的兴趣喜好。通透的花格能够把北侧阳台的光漫反射进空间里,令读书的光线十分亮堂。
别墅的高档表现在生活体例的提拔,而不是豪华的粉饰。
二楼做为生活区,为了满足更好的生活型态,白叟房、女孩房、男孩房都是套房的构成。和原始平面比拟,卫生间做了对换。
男孩房的窗与一楼之间构成互动关系,两侧靠栏杆的椅子与榻之间也有互动关系。两边的书架构成书廊,既处理了交通,也营造落发庭厅的气氛。
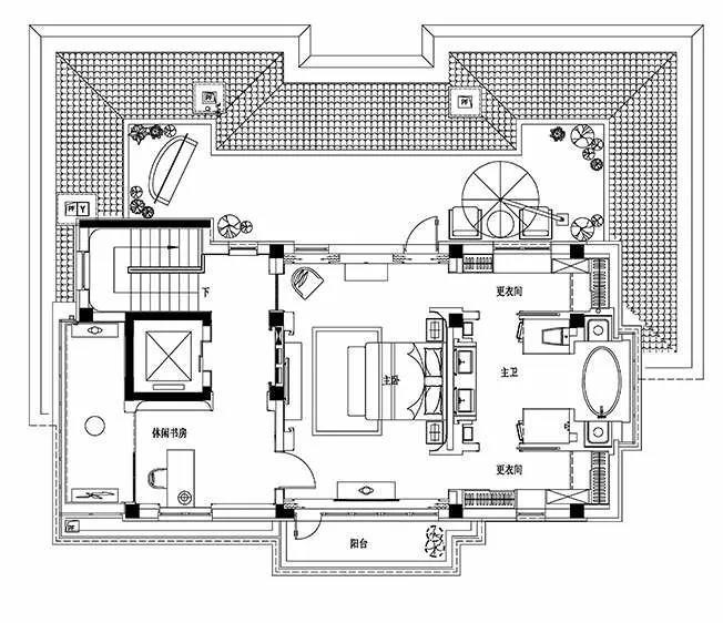
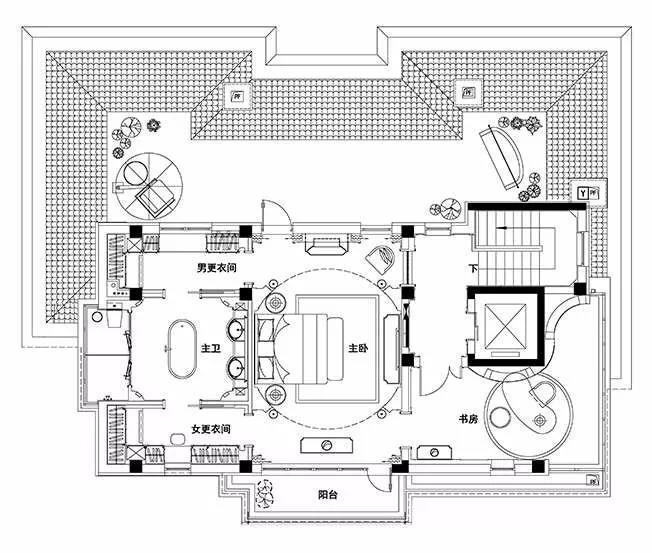
三楼空间
三楼原始平面
三楼平面计划在为大宅做设想计划的时候,应制止间接进入卧室。通过一个休闲的书区,再进入中间的卧室。在卫生间的两侧,别离安插了男女更衣间,以此提拔生活的层次。
地下空间
地下室原始平面
地下室平面计划把地下室的设备间向西移,以便有窗能够做为防爆面。北侧没有窗的处所设想成酒窖。南侧做为修身养性的处所,有SPA区和琴棋书画的空间,书廊和浴缸置于采光庭院之下。
灯和地毯皆是以“道家”中水的外形做设想元素。空间以素雅的木饰面做为串联。
计划二:哈佛院墅
设想师需要对营销有必然把关和领会
本案燕西华府的周边有人大附中,我们提议:“若是选择栖身于此,孩子在人大附中进修,未来留学常青藤学校,易于进入更高的阶层。”
一楼空间
一楼原始平面图
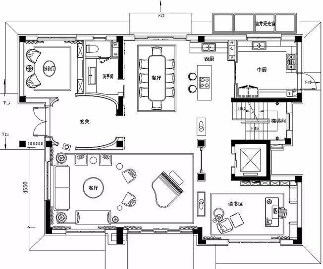
一楼平面计划原始平面图中有一处虚线区域,此次的计划把原有的共享空间(虚线区域)全数填平了。
在二楼的中心点,对应一楼钢琴的上方开了个洞,目标是打造一个类似哈佛环廊藏书楼的觉得。固然比力小,但是通过如许的形式注入世界名校的精神。
空间设想罗致了一些美式气概,同时也植入了现代的语言符号。
立面上简化了欧式的做法,细线的金属条诠释出摩登的设想感。
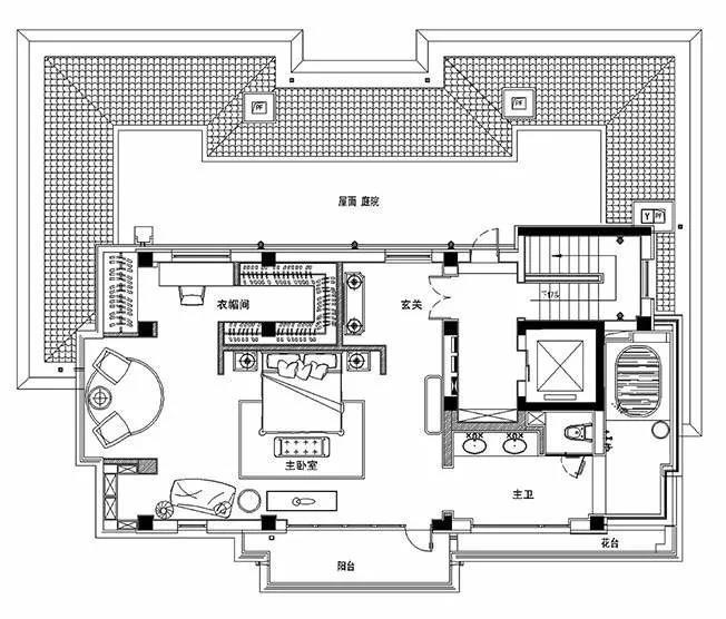
二楼空间
二楼原始平面图
二楼平面计划关于投标项目,在计划具备同样功用的前提下,美妙的平面计划是取胜的关键。
三楼空间
三楼平面计划三楼的平面图,本来的计划偏于中式、有序、朴直,而那个计划曲直线圆形、欧式的对称体例。床的区域,通过四面的围合柱构成了圆形。卫生间区域也做了一些置换,把浴缸规划在中间做为一个点。
地下空间
地下室原始平面
地下室平面计划地下室的光线较暗,充实操纵层高做出拱顶。
计划三
本来别墅坐落在院子傍边,南院稍宽阔,北院也有必然的进深。在做第三套计划的时候,我们做了一个提议:“把院落向南移,让北侧愈加切近建筑。”
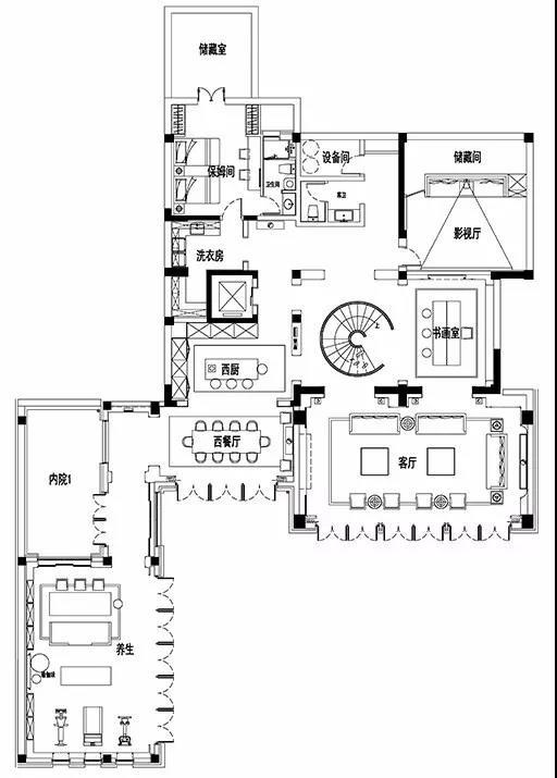
一楼空间
一楼平面计划电梯旁原先是楼梯。那个空间更大的革新是把楼梯移到北侧,让生活空间和对面情况不彼此影响,制止四周的噪音干扰。通过楼梯的上下交通,楼梯成了一个景点,景不雅和室内产生互动。电梯的一侧是厨房和早餐台,餐厅位于南侧。
新中式气概要抓住空间的内核,通过一些详细物象,把节气的概念输入空间设想中。
本案一楼以梅寓意“冬藏”,二楼以竹示意“夏长”,三楼以菊花代表“秋收”,地下室以兰花象征“春生”。
设想亮点 :
若是对空调的出进风量、出回风的形势比力精通,能够将空调风口的形式设想的很出彩。
一楼吊顶的梅花,既代表了冬藏的意向,同时里面也含有出风口和回风口,那是颠末计算,再通过不锈钢镂刻做成圆形的风口。
二楼空间
二楼平面计划二楼的房间也同样全数安插成套房。
因为二楼的具象是以竹为主,所以把风口做成竹子外型。
男孩房的床布景墙是比力刚毅的竹节形式,富有创意。
三楼空间
三楼平面计划三楼的平面与前面的计划较为接近,卫生间停止了南北向的条状散布。空间规划相对温馨,各类功用也齐备。整个空间饱含秋收的概念,代表业主的事业开展。
不只在平面上有扩展,在高度上也有扩展度。通过把顶面设想成坡屋顶的形式,到达争取空间的极致。
地下空间
地下室平面计划前面两个计划占用了北侧的保母间,此次把工做间和设备间移到了东侧。
计划二的哈佛院墅是通过顶的空间去争取高度,那个计划中,通过空中条理把空间打造地愈加丰硕。把地坪抬高做成茶馆,模拟前人蒲团的体例。
下沉式的聚会区放在采光更好的空间,使人在有阳光的处所停止互动交换。
茶馆的对景是一个山谷的屏风。采光庭院下面做了一汪清水。
在别的一侧安插动态的生活空间,引入瑜伽。在有绿植墙的情况中做健身,令人感应身心愉悦。
采光庭院的环吊向上眩光,既能够把过高的天窗上面的墙壁停止照亮,同时凸起来的光也能照到动物墙。
计划四
第四种户型的地形有高差,表示为地下室有一半是通往院落的,而入口处还在空中。因为那个院落面积比力大,我们把它做为“楼王”停止设想,并向甲方提议搭建一个合院,得到了甲方的认同。
地下、一楼空间
地下室平面计划
一楼平面计划那个计划涉及楼梯的革新, 占用客厅的空间,把楼梯做成圆形环绕式,增添下负一楼时的仪式感。客厅设在负一楼,从客厅出来能够进入院子,一楼次要做为接待之用。
计划的理念和意向是佛语禅心,在护墙板上饰有佛的符号。
地下一楼有客厅,而且纳入聚会的场合,以及独立的西餐厅。
客人的活动空间集中在合院的配房,里面设有摄生、茶馆和健身的空间。
二楼空间
二楼平面计划二楼的房间围绕家庭厅停止排布,丰满有序。
为了制止白叟的睡眠遭到干扰,将男女白叟的房间停止分隔。那也是关于“楼王”更高的生活需求。当白叟从房间里出来,能够在院落中大的平台里养花、休闲,十分温馨。
二楼以祥云为意向,硬包板上刻有祥云的图案符号,代表着家庭的昌隆敦睦。
三楼空间
三楼平面计划三楼以莲花做为粉饰。通过把阳台搭建出来,西侧构成比力恬静的禅佛室,用于做一些功课。
在设想时,手法应该大一点,向甲方提出的设法,只要事理和思绪是合宜的,甲便利会认同。
计划五一楼、二楼空间
一楼平面计划本计划崇尚国际化视野,一楼不再接纳中式循序渐进的设想体例,各个空间之间没有过多阻断,自在活动,在餐厅能够看到客厅,从客厅亦能够看到书房。
二楼平面计划没有着重打造共享空间,仅是把家庭厅稍向南移,使一楼与二楼的钢琴区有穿通,构成上下互动、自在、藏富不露的空间感。
色彩气概上,利用国际流行的高级灰和丁香紫,简约的两种配色丰硕起整个空间的变革。
三楼空间
三楼平面计划前几种计划皆为从东至西的排布,此次的三楼计划既有南北向的排布,也有工具向的排布。从平面图上能够看到,通过抬高做一个下沉式的浴缸。
地下空间
地下室平面计划地下室有一些功用空间的排布,而且打造了一个聚会区。
把一个比力暗的处所做成书柜,里面是贮藏室,用于保藏业主比力珍贵的物品。关于开合,需要和工人做施工切磋,最末到达顺滑开合与密闭的效果。
长桌上的摆件是一些建筑模子,那是按照我小我的生活喜好做的软拆配饰。色彩上,楼上楼下始末贯串着高级灰和丁香紫。
做为设想师,能与一个房地产商合做数年,必定有其奇特的长处,不然很容易被合作敌手击败。只要通过不竭变革设想的手法,才气让甲方觉得到价值。
互动问答问1:钢筋混凝土的楼板若何做圆洞,对承重构造停止改动,需要留意哪些?
答:若是楼板没有承重,间接切割没有问题。但是要留意:凡是甲方会预先铺地热,那就略微有点费事。我们是在改动后再铺地热,如许削减了工做量。
更好对承重构造不要做过大的改动,一旦改动后,其他的梁,就要停止植筋,有些处所要做预应力,以加强安稳性。有良多种办法,第一种是间接在混凝土里停止革新钢筋的植筋预应力,第二种也能够用钢构造做为支持。建议各人不要私行革新,因为那需要请设想院审核签字。
问2:若何做提报计划,如何讲解提案?
答:在做计划的时候,有时候是相当严重的,那就需要日常平凡的积淀,多阐发好的计划,找出它们的长处和亮点,同时还要有一些对世界、对汗青以及对现代人生活的领会,只要如许才气很快做出设想概念。提报计划不但有平面功用,还包罗理念、色彩搭配、软拆计划。
问3:木做产物是若何施工的?
答:现代的一些施工工艺十分先辈,案例中的木做废品起首是在工场造做,再运至现场拼拆。施工精细度十分高,那需要供给详尽周全的图纸,如今的施工队里有良多年轻的驻场设想师,他们精通软件。在我们供给的平面图上,连门套的细节都有标注,如许对施工量量的控轨制会相当高,关于一些极有变革的部门,则要求图纸愈加切确。
问4:拱顶在施工图上如何表示?
答:拱顶在施工图上是比力难画的,要有三维的觉得才气画出来。我们有时候会供给Sketchup模子图和手绘图给施工队。我觉无暇间手绘的根底是很重要的。
本期分享到此完毕,更多出色,敬请等待!!!
点击下方链接,收看往期更多出色曲播
