分享一个新式窑洞的拆修案例——
室第概略:
农村不应是落后的代名词,跟着工业化、城市化历程的加快,它应该是比城市更宜居的处所。
该室第位于陕西省渭南市,建筑面积278平方米,由hyperSity建筑设想事务所负责设想建造,主创建筑师:史洋、黎少君。
建筑师将黄土高原上的窑洞拓展到了洞外。
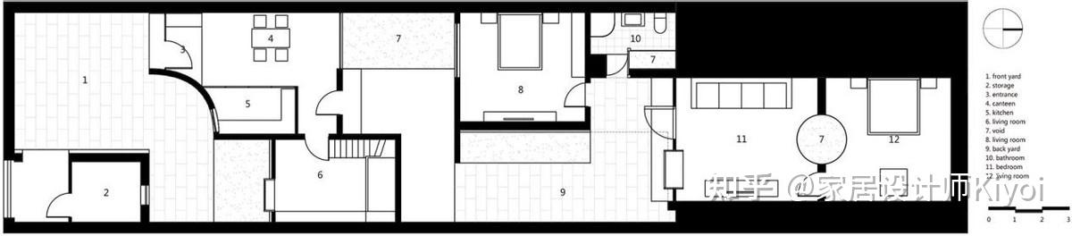
室第构造构成图。
继承窑洞冬暖夏凉的特点。
扩建后的主入口。
夯土工艺打造出与四周情况相协调的墙壁。
内部院落。
餐厅。
毗连餐厅的庭院。
半弧形遮雨棚。
夏日削减下战书的阳光曲射入屋内,冬季阻挠西冬风。
本来的老窑洞如今分为两部门,内侧为卧室,外侧为客厅。
客厅玻璃幕墙+厚格栅,包管采光。
客厅与卧室之间做了个采光庭院,曲径约1.5米。
卧室。
庭院天井与房屋空间交叉着摆列,优化行进动线。
如今不消晒农做物,所以才能够采纳那种“小资情调”的设想。
室第夜景。
最初看一下室第的平面图。
0
